Affordable Homes. Sustainable Communities. Built for Africa’s Rising Middle Class.
We design and deliver housing developments that combine quality, sustainability, and financing options that fit working families.
Building Communities for Tomorrow
The Kpadeh Group: Committed to Sustainable Development


150+
Families already housed through our projects
Homes under development across West Africa
1500
15+
Years combined experience in real estate & development
Current Development
Affordable housing meets modern design.


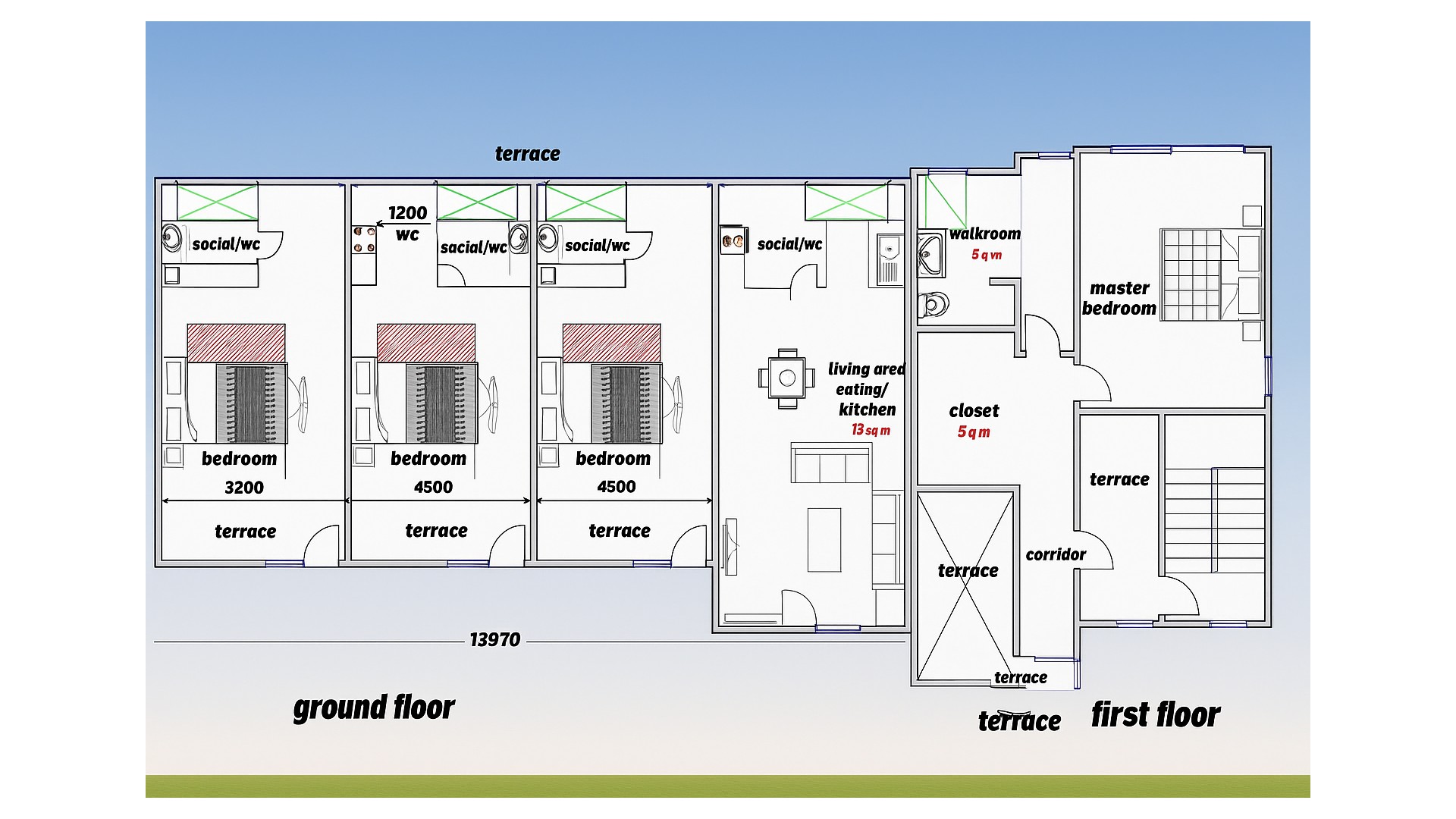
Wamba Town Semi-Detached Community
Location: Wamba Town, Monrovia, Liberia
Timeline: Nov 2025 – April 2026
Design: Two-bedroom semi-detached homes + six studio apartments
Highlights: Family-friendly layouts, rental income potential, locally sourced materials





Why Choose The Kpadeh Group
Housing designed for real families, built to last for generations
Built with sustainability
We source local materials and apply eco-friendly methods to keep costs low and communities resilient.
Communities that grow
Our developments go beyond buildings; we plan for schools, markets, and long-term neighborhood value.
Financing that fits
Flexible payment plans and mortgage options built around the realities of working-class buyers.
Join Our Community
Stay updated on our latest developments
Up-Coming Development 2027
Expanding access to quality homes outside Monrovia.


Brewerville Affordable Housing
Location: Brewerville, Liberia
Timeline: Planned for Q3 2026 – Q2 2027
Design: 30-unit housing estate with a mix of single-family and duplex homes
Highlights: Community water system, solar lighting, and installment-based financing model




Connect
Building communities for the rising middle class.
Explore
Contact
info@kpadehgroup.com
+1-555-0123
© 2025. All rights reserved.